ゲストルーム
ゲストルームはオーナ様へのサービスです。外部の方の申し込みは出来ません。
このサービスは組合所有の余剰物件がある場合のみとなり、将来的に常に存続する物ではありません。
現在 2部屋稼働中です。ご予約は1か月前の朝9:00~ 可能です。ご予約はお電話でお願いいたします。
ご利用方法
- チェックインは 当日 15:00 からになります。フロントデスクの営業時間内にチェックインを済ませてください。
- チェックアウトは 10:00までです。
- 利用料金は チェックインの際にお支払いください。
- ゲストルームは全室禁煙です
- 入口エントランスは、通常ICタグが無ければ入れませんが、ご予約済みの方はインターホンにてご連絡ください。
お部屋の種類
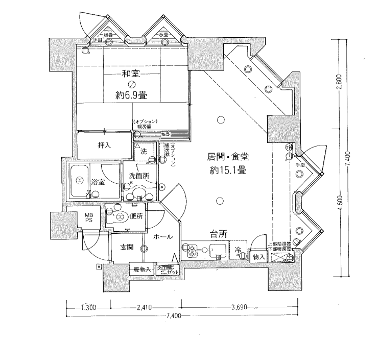
308号室

お部屋の概要
- 床面積: 27.80m2 (実際のお部屋の図面は反転になります。)
- 推奨ご利用人数: 2~4名
- 2段ベッド・冷蔵庫・TV が備え付けられています
- インターネット接続用のWi-Fi/LANポートが備え付けられています。(無料)
- 室内及び景観はこちら
ご利用料金
| ルームチャージ (お部屋代) |
夏休み :7月20日~8月31日(含むフジロック) |
||||
| リネン・清掃料等 | ¥1,100/1名様 *小学生未満でも布団を必要とする場合必要です。 (宿泊日数にかかわらず1回のご利用で1名様ごとに) |
号室(現在このタイプのお部屋はございません)

お部屋の概要
- 床面積: 30.34m2
- 推奨ご利用人数: 2~4名
- 2段ベッド・冷蔵庫・TV が備え付けられています
- インターネット接続用のWi-Fi/LANポートが備え付けられています。(無料)
- 室内及び景観はこちら
ご利用料金
| ルームチャージ (お部屋代) |
*オンシーズン:12月16日~3月31日 夏休み :7月20日~8月31日(含むフジロック) |
||||
| リネン・清掃料等 | ¥1,100 /1名様 *小学生未満でも布団を必要とする場合必要です。 (宿泊日数にかかわらず1回のご利用で1名様ごとに) |
906号室

お部屋の概要
- 床面積: 50.58m2
- 推奨ご利用人数: 4~6名
- 冷蔵庫・TV が備え付けられています
- インターネット接続用のWi-Fi/LANポートが備え付けられています。(無料)
- 室内及び景観はこちら
ご利用料金
| ルームチャージ (お部屋代) |
*オンシーズン:12月16日~3月31日 夏休み :7月20日~8月31日(含むフジロック) |
||||
| リネン・清掃料等 | ¥1,100/1名様 *小学生未満でも布団を必要とする場合必要です。 (宿泊日数にかかわらず1回のご利用で1名様ごとに) |
号室(現在この大きさのお部屋はございません)

お部屋の概要
- 床面積:53.18 m2
- 推奨ご利用人数: 4~6名
- 冷蔵庫・TV が備え付けられています
- インターネット接続用のWi-Fi/LANポートが備え付けられています。(無料)
- オプションの収納ベッドが無いタイプのお部屋です。
ご利用料金
| ルームチャージ (お部屋代) |
夏休み :7月20日~8月31日(含むフジロック) |
||||
| リネン・清掃料等 | ¥1,100/1名様 *小学生未満でも布団を必要とする場合必要です。 (宿泊日数にかかわらず1回のご利用で1名様ごとに) |
号室 (現在この大きさのお部屋は有りません。)

お部屋の概要
- 床面積: m2
- 推奨ご利用人数: 名
- 冷蔵庫・TV が備え付けられています
- インターネット接続用のWi-Fi/LANポートが備え付けられています。(無料)
ご利用料金
| ルームチャージ (お部屋代) |
*オンシーズン:12月16日~3月31日 夏休み :7月20日~8月31日(含むフジロック) |
||||
| リネン・清掃料等 | ¥1,100/1名様 *小学生未満でも布団を必要とする場合必要です。 (宿泊日数にかかわらず1回のご利用で1名様ごとに) |